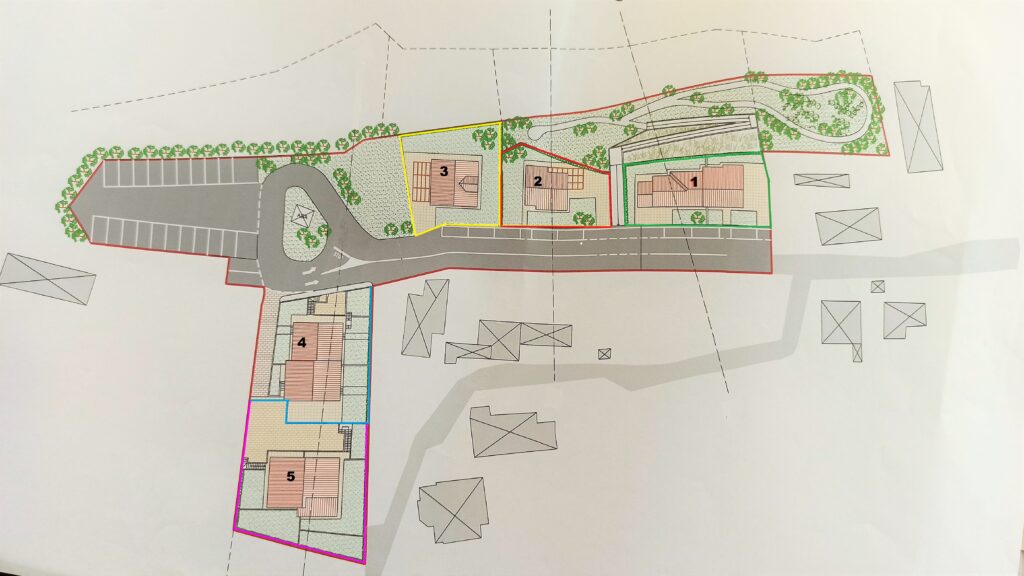
Terreni edificabili
Rif. CA41
Cavo – zona ombria
Terreni edificabili di varie misure, a 500 metri dal mare, facenti parte di piano di lottizzazione con piano attuativo in fase di approvazione.
Lotto 1
previsti dal piano
2 appartamenti
appartamento 1 bilocale di circa 50mq su un unico piano
appartamento 2 trilocale di circa 60mq su due livelli: piano terra zona giorno, piano 1 zona notte; 2 bagni
Lotto 2
Previsto dal piano
villino indipendente su un unico piano
46mq
2 stanze: zona giorno e camera da letto
Lotto 3
Previsto dal piano
Villino indipendente con soppalco
circa 70mq totali
2 camere da letto, zona giorno, soppalco a vista su zona giorno
Lotto 4
Previsto dal piano:
2 appartamenti su 2 piani
Appartamento 1, 120mq circa : piano seminterrato, garage e cantina; piano terra zona giorno e bagno, piano 1 2 camere bagno e loggiato
Appartamento 2, circa 75 mq: piano terra zona giorno e bagno; piano 1 2 camere, bagno, loggiato
Lotto 5
Previsto dal piano
2 appartamenti
Appartamento 1, circa 95mq: Piano seminterrato autorimessa; piano terra zona giorno, camera, bagno; piano 1 camera, bagno
Appartamento 2, circa 85 mq: Piano seminterrato autorimessa; Piano terra zona giorno e bagno; piano 1 2 camere e bagno
